Hamill Tire

2425 N. Andrews Avenue

Hamill Tire 1
Hamill Tire 2

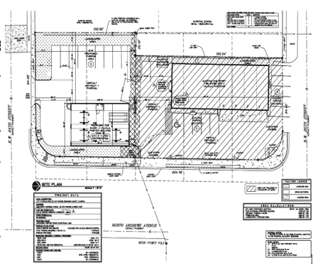
The proposed project consists of a 2,306 square foot four (4) bay new auto service building to be located at the southwest corner of NW 25 Street and N. Andrews Avenue known as “Hamill Tire Expansion”. The proposed project is an expansion of the existing Hamill Tire business. A certificate of occupancy was issued for this project on February 22, 2024.

View plans for Hamill Tire.