Skip to Main Content
Create a Website Account
- Manage notification subscriptions, save form progress and more.
Website Sign In
Search
Government
City Services
Residents
Business
News & Events
Connect
CustomLinks_10
Conway Residence
Conway Residence
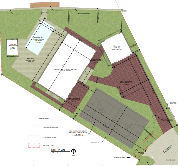
The proposed project involves converting the existing community facility at 2749 NE 14 Avenue into a single-family residence.
Preliminary plans for
Conway Residence
The Ave
Hamill Tire
Wilma on the Drive
Generation at Wilton Manors
Windsor Place
Wilton Yards Townhomes
Wilton Manors-3 Town Houses LDA 5
57 Wilton Manors
2916 Investments (former Andrews Diner site)
The Wilton Hotel
Lennar Project
TOPOS SB LLC
The Bean Espresso Bar
The Flowery
Shoppes of Wilton Manors (Stiles Project) - 2200-2292 Wilton Drive
Bell Pharmacy
Wilton 114 LLC
The Ave (REVISED)
Conway Residence
Our Fund Foundation
Employment
Pay Online
Library / Leisure Services
Police / Public Safety
Agendas / Meetings
Code Compliance
Loading
Loading
Arrow Left
Arrow Right
[]
Slideshow Left Arrow
Slideshow Right Arrow